主要用途:
本系列产品主要用于铁路、公路、桥梁、港口、高层建筑等工程建设对橡胶支座性能的测试。满足《JTT-391-2009公路桥梁盆式支座》、《TB/T1893-2006铁路桥路板式橡胶支座》、《JG118-2000建筑隔震橡胶支座》等性能测试的技术要求。也可用于金属及其他非金属材料、构件强度试验。控制方式采用计算机电液伺服系统自动控制,实现等速率自动加载和恒试验力保持、试验数据和曲线实时显示、储存复查、试验报告自动生成、打印输出并有网络接口,试验软件具备与国内主流联网公司数据上传功能。
技术参数:

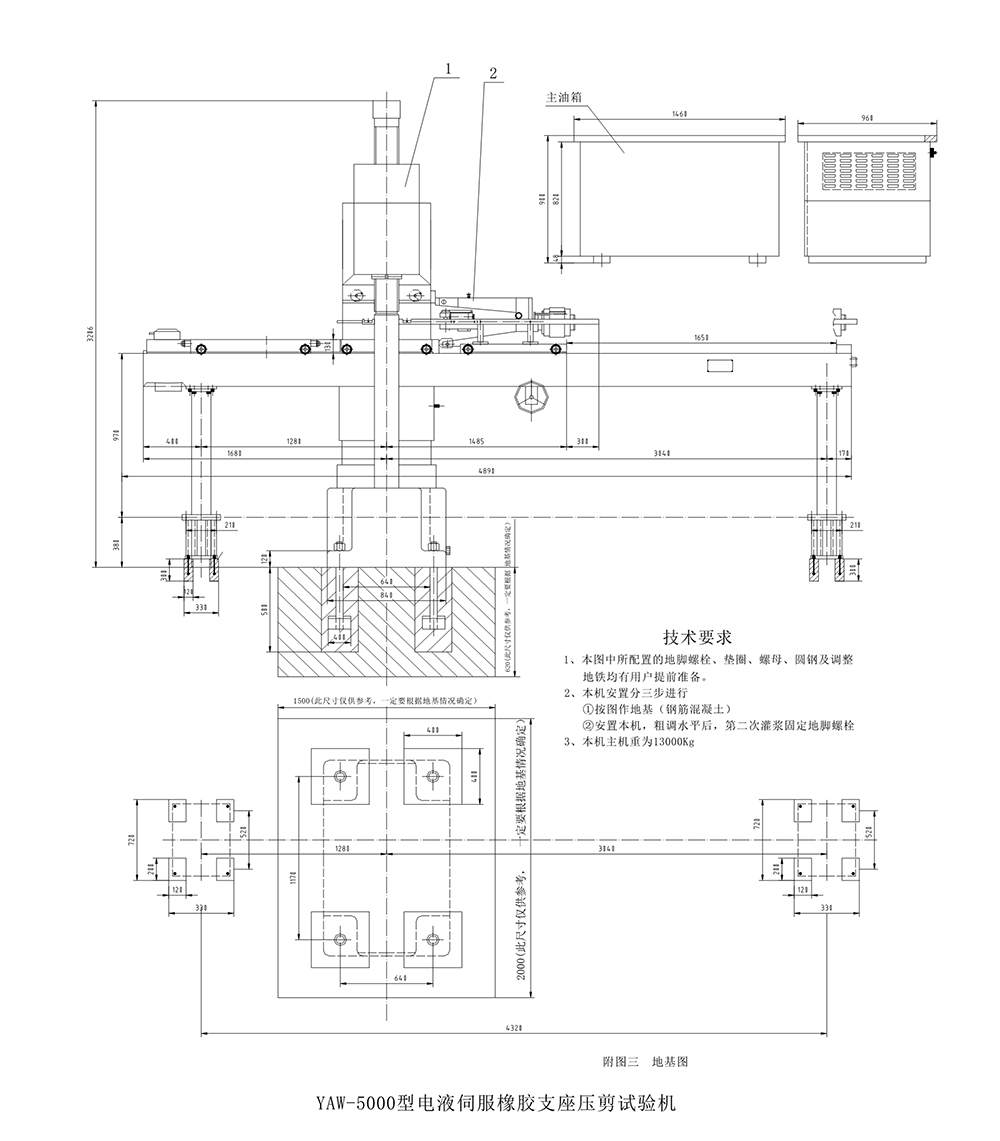
地基图:

