主要用途:
主要用于各种金属材料、非金属材料的拉伸、弯曲、压缩、剪切、剥离、撕裂等试验。例如螺纹钢拉伸,高强度螺栓、高硬度金属材料的拉伸弯曲,钢盘机械连接件残余变形,金属以及混凝土的压缩等。
满足标准:
GB/T 228.1-2021金属室温拉伸试验方法标准
GB/T 7314-2017金属压缩试验方法法
GB/T 50081-2019混凝土物理力学性能试验方法标准
GB/T 16826-2008电液伺服万能试验机
JJG 1063-2010电液伺服万能试验机检定规程
JGJ 107-2016钢筋机械连接技术规程
采用专利:
ZL 201930466197.1 万能试验机(CXWAW-300S)
产品特点:
1.采用油缸下置,六立柱框架结构,刚性好,结构稳定。
2.上下内置拉伸油缸,使液压夹头试件自动夹紧。
3.钳口液压夹紧系统实时供油,防止试件在拉伸过程中打滑,影响试验结果真实性与有效性。
4.采用高精度负荷传感器测力,测量精度高,范围广。
5.采用高精度位移传感器。
6.采用伺服电机控制,静音节能,系统发热量小。
7.采用高精度引伸计测量试样变形。
8.采用双螺母反向消隙结构,解决了由于螺母长期运行磨损导致的零部件缝隙增大问题,保证加载速率,远超于GB228的标准。
9.采用内藏式结构设计,钳口及钳口卡板在试验运行时均不外露到钳口座的外面,使试验机钳口内的受力度相对均衡,有效避免试验机在长期运行中对试验机卡板、钳口、钳口座的劳损问题,从而解决试验机钳口座反边、变形的问题。
10.嵌入式高强度耐磨铜衬板设计,既可减小试件拉伸时卡板和试验机横梁的摩擦阻力,又可最大限度的保证同轴度。嵌入式左右压板,消除螺丝剪切力,使螺丝不易松动。
11.对消隙螺母、丝杆螺母、传感器螺母、底座、活塞拉杆、左右压板螺母进行调整加工,使试验机更加稳定牢固。
12.采用封闭式防护结构,有效阻止灰尘以及试件氧化皮进入丝杆与螺母,使试验机平稳运行,耐久性更好。
13.采用联网的测控系统,具有增益调节、零点满度等功能,保证机器平稳运行及准确测量。
14.可实现恒速率力控制,恒速率应力控制、恒速率应变控制、恒速率行程控制、低周循环疲劳控制及用户自编程控制等多种控制方式。
15.可绘制力-变形、力-位移、应力-应变、力-时间等多种试验曲线。
16.采用PCI总线控制方法。
17.液压系统的主要部件采用国外进口机件,如进口的西门子电机以及进口的径向柱塞油泵,使得试验机加载精度更高、噪音更低、耐久性更好,增强了机器的稳定性。
18.采用计算机和电液伺服系统进行控制加载,完全自动控制。能根据预先设置的应力速率和曲线形式自主完成试验,并显示负荷、速率、时间及试验曲线动态显示。只需设置一次参数即可完成全部试验。
19.测力柜配备了当前先进的工业级嵌入式平板电脑,可承受的电压范围达85-250V,抗干扰性能更强。电脑采用触屏工艺,触摸操作或键盘操作均可使用,整体更加符合人体工程学设计,操作更加方便简单。
20.采用Windows系统控制软件,可自动求取弹性模量E,上屈服强度ReH、下屈服强度REL、规定非比例延伸强度Rr、抗拉强度Rm、规定总延伸强度Rt、最大力总伸长Agt、屈服点延伸率等多项技术参数。
21.采用微机自动数据采集、处理以及试验数据与试验曲线同步屏幕显示。试验曲线可局部放大并可进行多曲线的叠加比较。具有试验结果的磁盘存贮、打印试验结果和试验曲线,批量试验结果的报表处理、数据库管理等功能并留有网络接口。具有局域网联网功能和远程数据无缝联接功能。
技术参数:

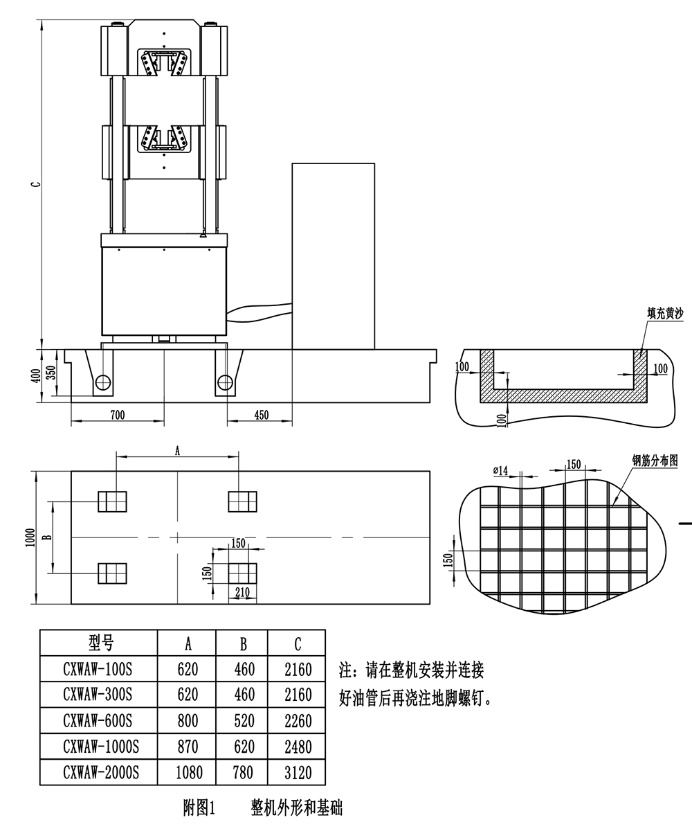
安装地基图:
